河北泊头华康环保除尘器生产厂家
24小时热线: 15133798838

怎样设计脉冲布袋除尘器的技术参数?

来源:华康环保 发布时间:2017/3/27 8:55:04
目前国内的冲天炉,一般配有喷淋式除尘设备,除尘效率低,达不到国家的基本标准要求,并且造成水的第二次严重污染;有些根本没有配置除尘设备,烟气向大气直接排放,严重的污染空气,影响周围环境质量。为改善这一状况,华康技术人员针对这一问题设计出了其中一种技术参数仅供客户参考。
目前国内的冲天炉,一般配有喷淋式除尘设备,除尘效率低,达不到国家的基本标准要求,并且造成水的第二次严重污染;有些根本没有配置除尘设备,烟气向大气直接排放,严重的污染空气,影响周围环境质量。为改善这一状况,华康技术人员针对这一问题设计出了其中一种技术参数仅供客户参考。

脉冲布袋除尘器设备技术参数如下:
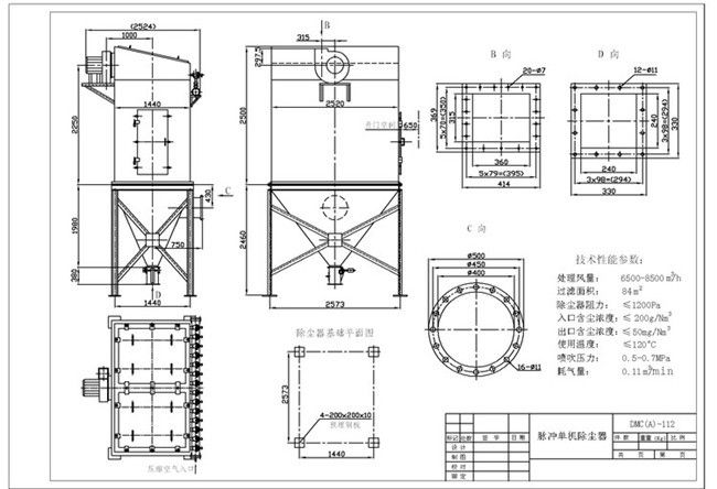
处理风量:40100 m3/h
过滤风速:1.2-2.0 m/min (根据不同的扬尘点选取不同的净化过滤风速)
总过滤面积:557 m2
净过滤面积:465 m2
滤袋总数:576个
收尘器阻力:1470-1770 Pa
进口气体含尘浓度:<1300 g/m3
出口气体含尘浓度:<100 mg/m3
收尘器承受负压:<5000 Pa
清灰压缩空气压力:0.5-0.7 mpa
清灰压缩空气耗气量:1.8 m3/min
星形卸料装置YJD-26:下料口400×400mm,转速率41r/min,减速电机2.2kw,产量72.2mm3/h
螺旋输送机规格:Φ400mm,产量38m3/h,减速机型号XWD5.5-7-1/59,电机功率5.5kw
脉冲布袋除尘器技术参数的选择方法:
进出口风向与风速用户可根据工艺布置的需要向生产厂提出除尘器进出口风向的要求,以及根据处理风量的大小和所采用的风速提出进出口截面尺寸的要求。一般采用的进风口风速为14~16米/秒,出口风速为16~18米/秒,进风口风速过大。
华康脉冲布袋除尘器设计参数以及内部结构图图片
华康脉冲布袋除尘器设计参数以及内部结构图图片
华康专业的脉冲布袋除尘器生产商:
华康成熟的脉冲布袋除尘器已被广泛的应用于各行各业,我公司作为专业的脉冲布袋除尘器生产商,吸收国内外先进的技术经验,针对烟气的特殊性,不断改进,使之更适合烟气处理的新型布袋除尘器。您想了解脉冲布袋除尘器可以与华康的客服人员进行对话咨询:13699250191,我们会24小时为您免费在线沟通,欢迎您的来电。

看过该文章95%的用户还看过

小型锅炉除尘器厂家-小型燃煤锅炉除尘器价格
小型燃煤锅炉除尘器实体厂家为客户提供整体解决方案,包括小型锅炉布袋除尘器和锅炉脱硫除尘器整套设备,以及为客户提供较合理的小型燃煤锅炉除尘器价格
布袋除尘器-脉冲布袋除尘器
MC脉冲袋式除尘器是一种除尘效果明显的除尘设备,该设备组成简单,优点多,华康具有多年选型经验,下面提供详细选型参数供大家选择,且脉冲袋式除尘器的价格也定会另您中意!
脉冲袋式除尘器
离线(在线)清灰脉冲袋式除尘器由进出口烟道、除尘室、净气室、清灰系统及灰斗等组成。华康离线(在线)清灰脉冲除尘器解决了常规脉冲袋式除尘器存在的“粉尘再附与失控”问题,提高了滤袋清灰效果,从而提高过滤速度,是我们具有特色的技术产品。
2-10吨小型锅炉脉冲布袋除尘器厂家-锅炉布袋式除尘器设备价格
2-10吨小型锅炉脉冲布袋除尘器厂家华康提供质量好,除尘效率高,价格低的锅炉布袋式除尘器设备。除尘效率高,应用广泛可以满足不同客户的需求。我公司可以为客户量身定做方案。
布袋除尘器-袋式除尘器
布袋除尘器是目前所有除尘器设备中应用广泛、除尘效率高的一款产品,适合水泥、钢铁、化工、建材、食品、木工厂、冶炼等多个行业使用,华康袋式除尘器除尘效率高、规格型号齐全、适应范围广、不造成二次污染。
袋式反吹除尘器-反吹袋式除尘器
大型袋式反吹除尘器广泛应用于钢厂、冶炼厂、水泥厂、炭黑厂、电站等企业冶炼、粉碎、筛分和燃烧所产生的烟尘净化 及回收。它是保护操作者和人民身心健康,农作物的生长、机械设备的磨损、社会环境的污染和有用粉尘的回收利用降低成本的有效设备。
华康环保 2011(C)版权所有 并对网站所有内容保留释权 冀ICP备19003096号-2 

冀公网安备13098102000583号

技术支持